Select Page

ALBON ENGINEERING & MANUFACTURING FACILITY

NORMAN, OKLAHOMA
223,600 SF
$33.5 M
DESIGN COMPLETED FY04
CONSTRUCTION COMPLETED FY07

ALBON ENGINEERING & MANUFACTURING FACILITY
ALBON ENGINEERING & MANUFACTURING FACILITY
ALBON ENGINEERING & MANUFACTURING FACILITY
ALBON ENGINEERING & MANUFACTURING FACILITY
ALBON ENGINEERING & MANUFACTURING FACILITY
ALBON ENGINEERING & MANUFACTURING FACILITY
ALBON ENGINEERING & MANUFACTURING FACILITY
ALBON ENGINEERING & MANUFACTURING FACILITY
ALBON ENGINEERING & MANUFACTURING FACILITY
ALBON ENGINEERING & MANUFACTURING FACILITY
ALBON ENGINEERING & MANUFACTURING FACILITY ALBON ENGINEERING & MANUFACTURING FACILITY ALBON ENGINEERING & MANUFACTURING FACILITY ALBON ENGINEERING & MANUFACTURING FACILITY ALBON ENGINEERING & MANUFACTURING FACILITY ALBON ENGINEERING & MANUFACTURING FACILITY ALBON ENGINEERING & MANUFACTURING FACILITY ALBON ENGINEERING & MANUFACTURING FACILITY ALBON ENGINEERING & MANUFACTURING FACILITY ALBON ENGINEERING & MANUFACTURING FACILITY

FOUNDED IN 1970 AND HEADQUARTERED IN ROCHFORD, UK, ALBON E&M SELECTED BLAIR REMY ARCHITECTS TO DESIGN THEIR CURRENT FACILITY IN THE UNITED STATES. ALBON DESIGNS, MACHINES, AND ASSEMBLES ENGINE COMPONENTS FOR AUTOMOTIVE AND DIESEL MANUFACTURERS.

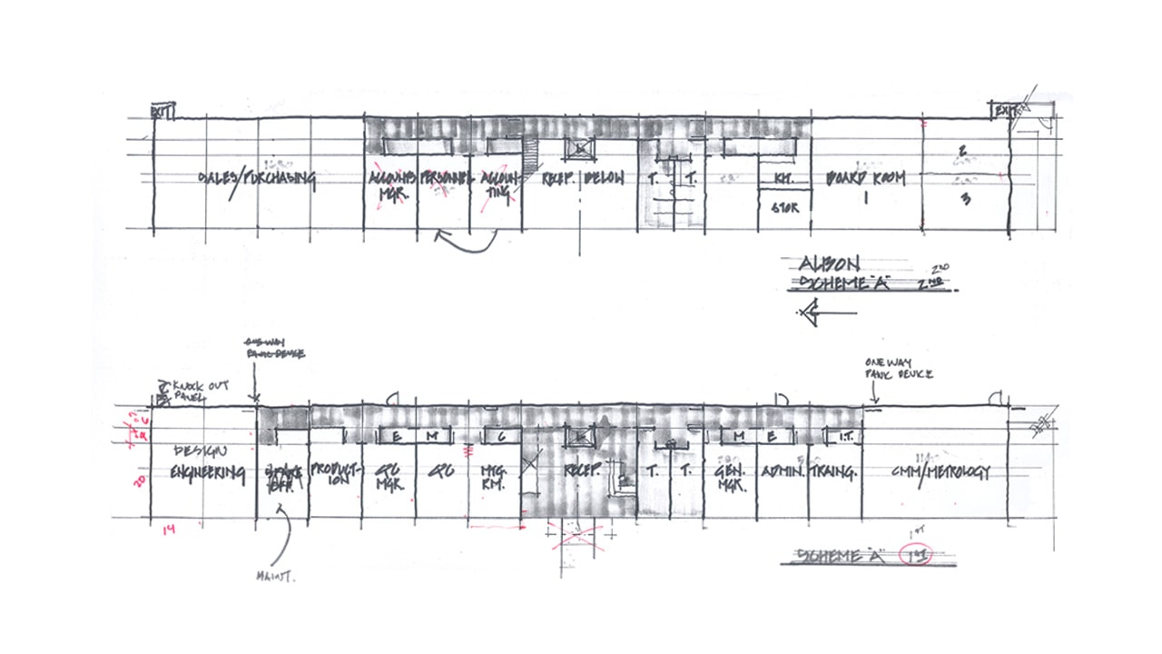
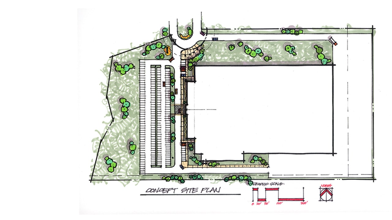
THE ALBON FACILITY DESIGN CONSISTS OF A HIGH-BAY SINGLE STORY MANUFACTURING FACILITY INCLUSIVE OF APPROXIMATELY 13,000 SF OF TWO STORY OFFICE SPACE AND A SINGLE STORY STAFF DINING, LOCKER, AND TOILET AREA OF APPROXIMATELY 5,000 SF. CONSTRUCTION TYPE UTILIZES EXTERIOR TILT-WALL CONCRETE PANELS WITH INTERNAL STEEL COLUMNS AND BEAMS ON A TWENTY-FIVE (25) FOOT BAY SPACING, THREE (3) BAYS WIDE TOTALING THREE HUNDRED-FIFTY (350) FEET, WITH PURLINS SUPPORTING A STRUCTURAL GRADE STANDING SEAM METAL ROOF.