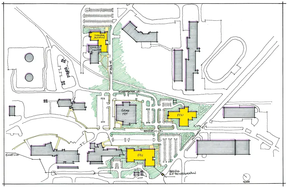
B-21 Beddown
Ellsworth Air Force Base
Pennington and Meade Counties, South Dakota
Full A/E Design Services Included:
- Architecture
- Engineering
- Interior Design
- Programming
From planning to full design, Blair Remy was instrumental in the effort for several projects to accommodate the new B-21 aircraft including a Formal Training Unit, Field Training Detachment, two phases of a Simulator Facility, and an Explosive Ordnance Disposal Facility.
