Select Page

COCOM COMMUNICATIONS FACILITY

AMC/USAF Design Award

MacDill Air Force Base
Tampa, Florida
29,992 SF
$34 M
Design Completed FY10
Construction Completed FY12

COCOM-Concept-Perspective
COCOM-Eye-Level-Perspective
COCOM-Bid-Option-Elevations
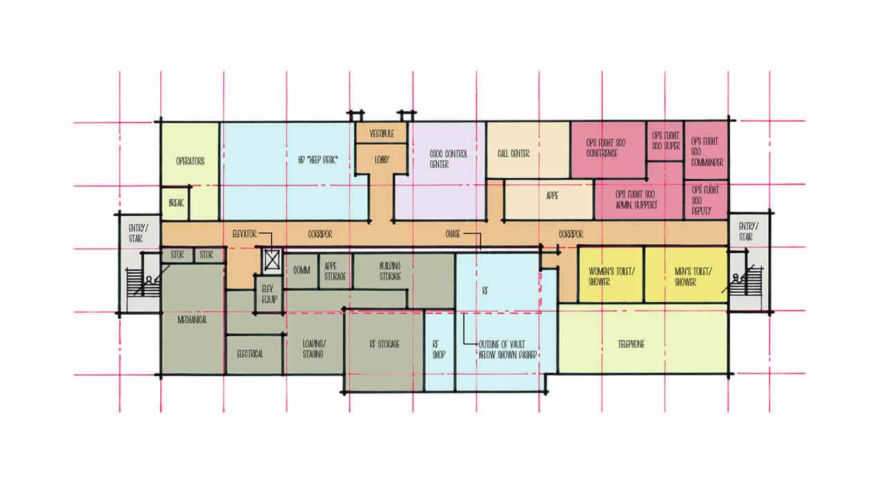
COCOM-Sub-Area-Plan-Scheme-6.2
COCOM-Bid-Option-First-Floor-Plan
COCOM-2nd-Floor
COCOM1st
COCOM2nd
Final-color-image-revised-wall-color
COCOM-Concept-Perspective COCOM-Eye-Level-Perspective COCOM-Bid-Option-Elevations COCOM-Sub-Area-Plan-Scheme-6.2 COCOM-Bid-Option-First-Floor-Plan COCOM-2nd-Floor COCOM1st COCOM2nd Final-color-image-revised-wall-color

The COCOM Facility relocated Communications Squadron functions to support the 6th Air Mobility Wing and its mission partners such as USCENTCOM, USSOCOM AND JCSE. The character of the two-story COCOM Facility enhances the compatibility with the community of buildings of similar form, style, material and details. The exterior appearance of the COCOM Facility adheres to the Base General Design Guidelines and the Architectural Compatibility Plan (ACP) for MacDill AFB. Utilizing a design approach that is both comprehensive and responsive to a cohesive “single facility” vernacular, Air Force heritage, and the “Florida Coastal” aesthetic, the COCOM Facility was conceived within the limitations of Air Force construction criteria and maintenance considerations.

The architectural character is a contemporary interpretation of traditional elements of the Base’s historic vernacular. Representative of this theme is a horizontal building expression conveyed with a pebble colored split-face block plinth and Brazil Nut color stucco on the first level façade. Contrasting Seed Pearl color stucco is used on the second level façade to include louvered vents, structural pilasters, and water table belt coursing.