Select Page

Crash Fire Station

AMC/USAF Design Award

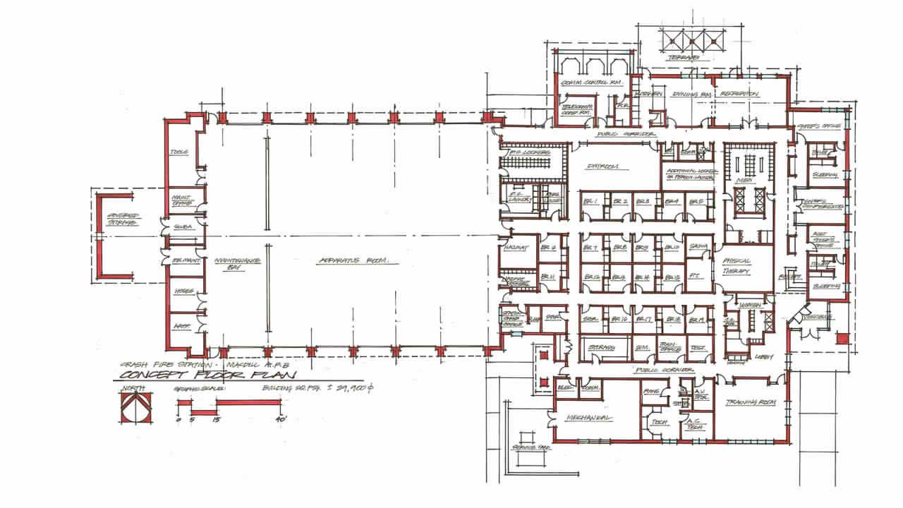
MacDill Air Force Base
Tampa, Florida
29,000 SF
$6.5 M
Design Completed FY03
Construction Completed FY05

Final-Sketch-no-roof-texture
03
New-Image-4
Final-Site
New-Image-6
Final-FlrPlanSm
New-Image-5
New-Image-3
New-Image-2
New-Image-1
Final-Sketch-no-roof-texture 03 New-Image-4 Final-Site New-Image-6 Final-FlrPlanSm New-Image-5 New-Image-3 New-Image-2 New-Image-1

Complete design phase services were provided for the Crash Fire Station which consisted of consolidating existing, outdated fire-fighting facilities into one 29,000 SF state-of-the-art central fire station facility to improve emergency response times and improve the preparedness of the responce forces. The facility includes administrative, training, and dormitory space; kitchen, dining room, physical fitness area, laundry, lockers, restrooms, showers, day room and recreation room; equipment and extinguisher storage; equipment maintenance and an apparatus room.