Select Page

Dorms 4 Airmen – Little Rock

Little Rock Air Force Base
Little Rock, Arkansas
59.7K SF
$23.9 M
Design Completed FY18

LR-Sketch
BW-Concept-Sketch
Dorm-Expansion
Elevations
Section-Elevation
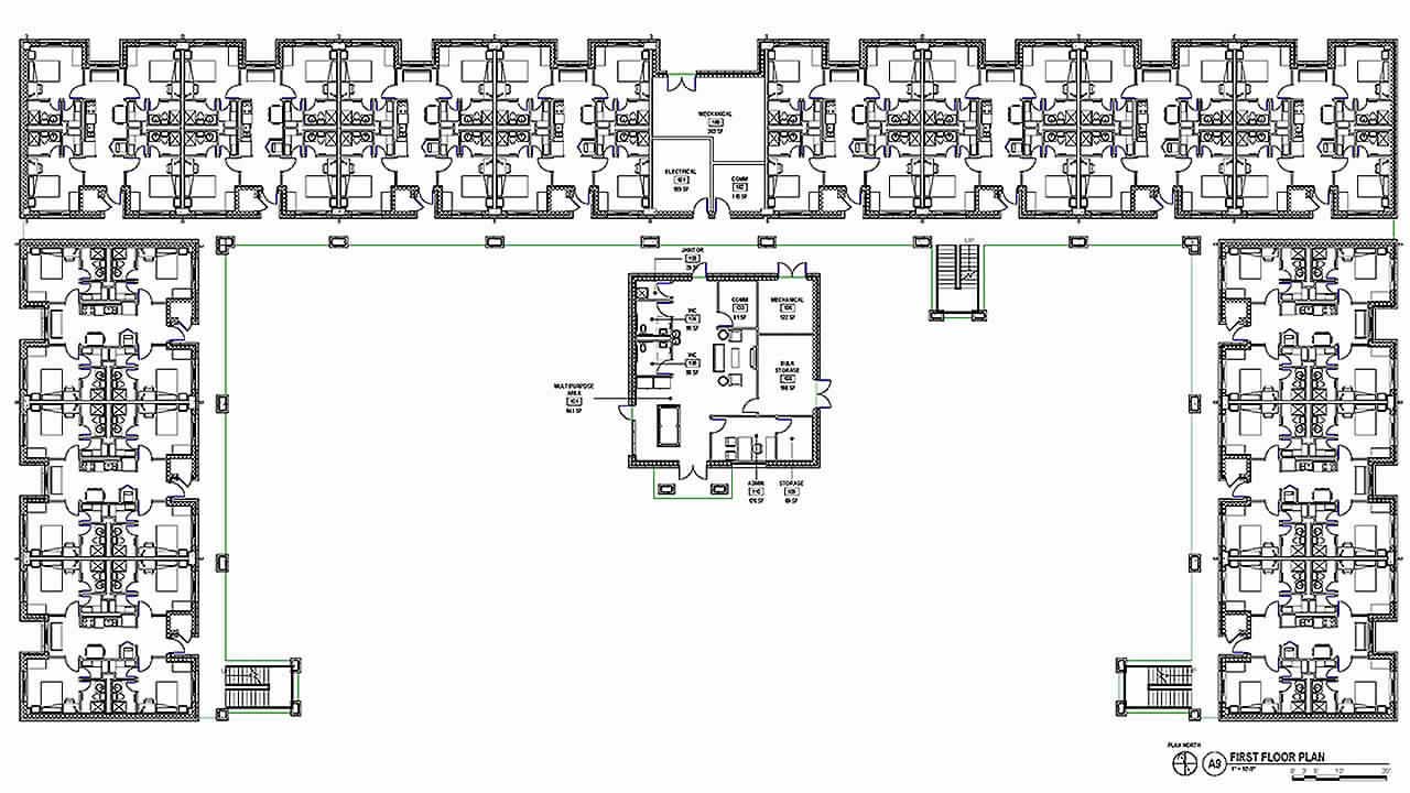
First-Floor-Plan
Second-Floor-Plan
Scheme-2-sketch
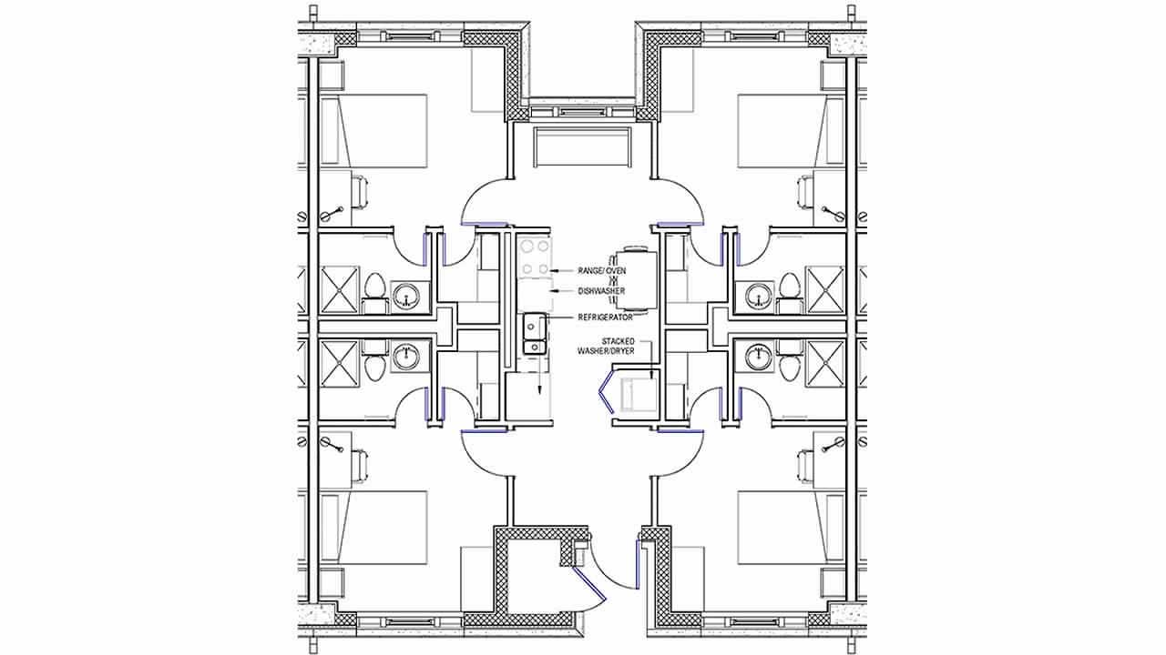
Enlarged-Unit-Plan
Roof-Concept
LR-Sketch BW-Concept-Sketch Dorm-Expansion Elevations Section-Elevation First-Floor-Plan Second-Floor-Plan Scheme-2-sketch Enlarged-Unit-Plan Roof-Concept

The purpose of this project is to provide a Requirements Document / Conceptual Design package for the Design and Construction of the 168-UNIT REPLACEMENT AIRMEN DORMITORY. The existing dormitories located at LRAFB do not satisfy the base’s requirement for lodging for airmen. The new facility will supply much needed capacity for lodging. The 168-unit, three-story dormitory will comply with all applicable DoD, Air Force, and base design standards. The Architect performed all necessary studies, analyses, design, cost estimating, conceptual drawings preparation, and the preparation of other documents required for this project.

Four-person Dorms-4-Airmen (D4A) design standards include private bedrooms with bath, common living area with fully equipped kitchen. Dormitory facility areas include public restrooms, common day room areas, and adequate storage on each floor. Supporting facilities include construction of a 118-space resident parking lot, site work, and all necessary support associated with the completion of this project.