Interstate-40 Realignment
Tinker Air Force Base
Oklahoma City, Oklahoma
Conceptual Services Included:
- Architecture
- Engineering
- Interior Design
- Programming
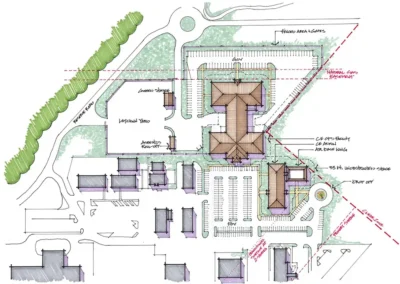
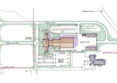
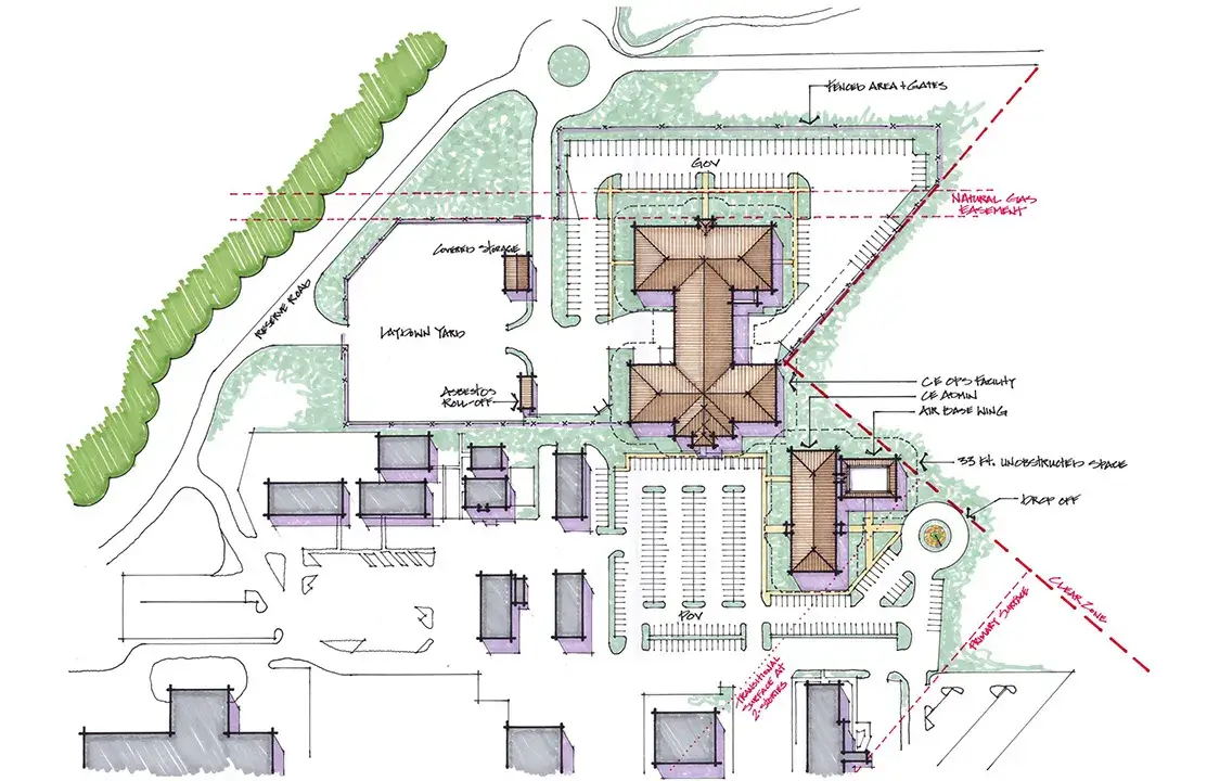
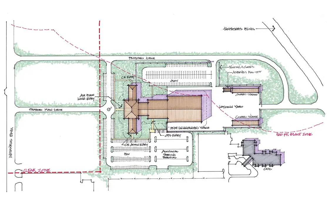
Blair Remy was tasked with providing Planning Charrette Report documents to determine the impact that the planned relocation of Interstate-40 will have on facilities and land owned by Tinker AFB, and to develop a plan to relocate assets and mission functions that will be displaced. This effort also included the development of two conceptual designs for a future consolidated facility to house all of Tinker’s Civil Engineering staff and commander.
