Select Page

KC-46A TAIL DOCK EXPANSION

ALTUS AIR FORCE BASE
ALTUS, OKLAHOMA
11,100 SF
$9 M
DESIGN COMPLETED FY14
CONSTRUCTION COMPLETED FY15

KC-46A TAIL DOCK EXPANSION
KC-46A TAIL DOCK EXPANSION
KC-46A TAIL DOCK EXPANSION
KC-46A TAIL DOCK EXPANSION
KC-46A TAIL DOCK EXPANSION
KC-46A TAIL DOCK EXPANSION
KC-46A TAIL DOCK EXPANSION
KC-46A TAIL DOCK EXPANSION
KC-46A TAIL DOCK EXPANSION
KC-46A TAIL DOCK EXPANSION
KC-46A TAIL DOCK EXPANSION KC-46A TAIL DOCK EXPANSION KC-46A TAIL DOCK EXPANSION KC-46A TAIL DOCK EXPANSION KC-46A TAIL DOCK EXPANSION KC-46A TAIL DOCK EXPANSION KC-46A TAIL DOCK EXPANSION KC-46A TAIL DOCK EXPANSION KC-46A TAIL DOCK EXPANSION KC-46A TAIL DOCK EXPANSION

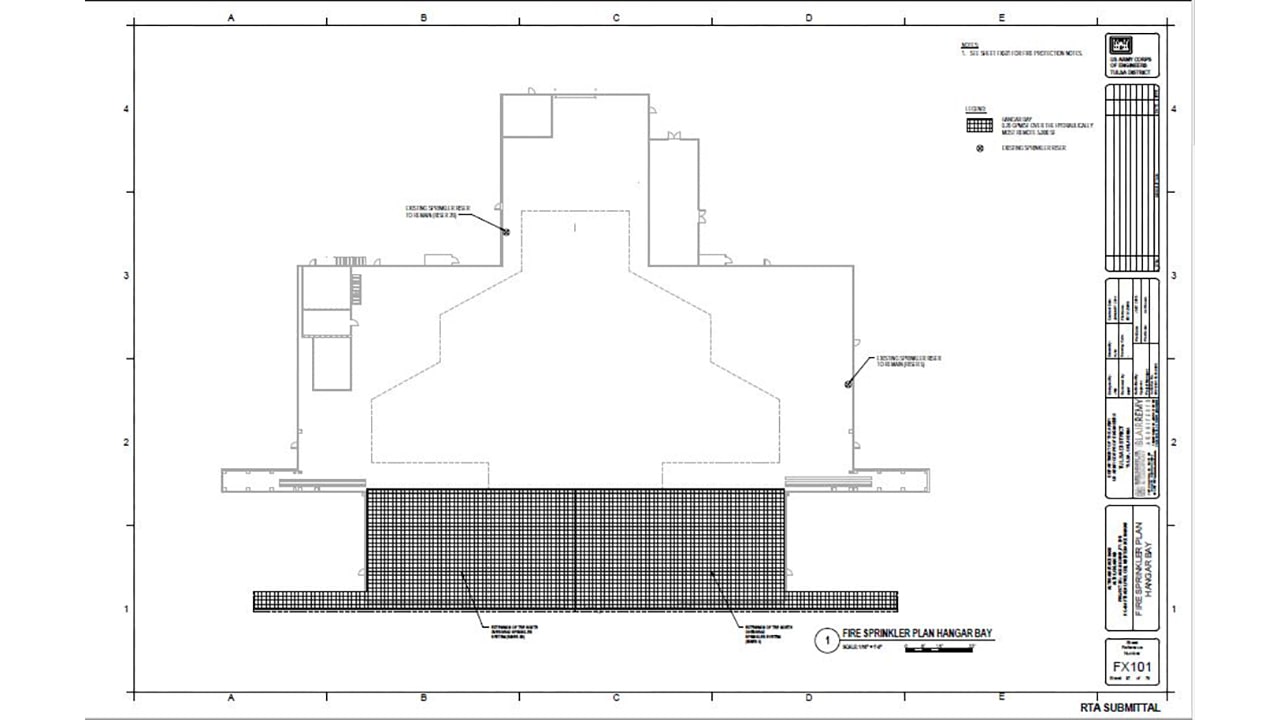
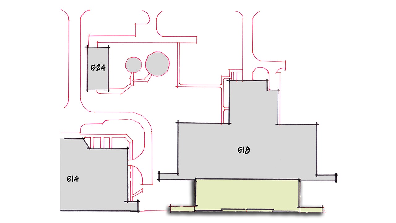
THE DESIGN TEAM ADAPTED THE KC-46A STANDARD PROTOTYPE DESIGN FOR ALTUS AFB, OKLAHOMA. THE FACILITIES ARE TO BE UTILIZED IN CONNECTION WITH THE KC-46 PEGASUS PILOT TRAINING PROGRAM; THUS, ALTUS AIR FORCE BASE, OK IS IDENTIFIED AS THE FORMAL TRAINING UNIT (FTU) FOR THE KC-46 PILOTS.

ADDITION & INNOVATION: THE TAIL DOCK EXPANSION OF HANGAR 518 PROJECT EXPANDS BY 11,100 SF WITH A NEW TAIL DOCK TO ENCLOSE THE KC-46A. THE BLAIR REMY DESIGN ACCOMMODATES THE EXISTING C-17 AIRCRAFT BY ENABLING THE LONGER C-17 AIRFRAME TO BE ENCLOSED BEHIND THE NEW 60 FOOT HIGH ROLLING STEEL DOORS, WITHOUT INCREASING THE SF ALLOCATION IN THE AFCEC SOW