Select Page

Visitors Quarters

MacDill Air Force Base
Tampa, Florida
205,790 SF
$54 M
Design Completed FY13
Construction Completed FY16

inside-Visitors-Macdill-3
inside-Visitors-Macdill-1
VQ-New-Image-1
VQ-New-Image-2
inside-Visitors-Macdill-2
VQ-New-Image-5
VQ-New-Image-3
inside-Visitors-Macdill-5
inside-Visitors-Macdill-4
VQ-New-Image-4
inside-Visitors-Macdill-3 inside-Visitors-Macdill-1 VQ-New-Image-1 VQ-New-Image-2 inside-Visitors-Macdill-2 VQ-New-Image-5 VQ-New-Image-3 inside-Visitors-Macdill-5 inside-Visitors-Macdill-4 VQ-New-Image-4

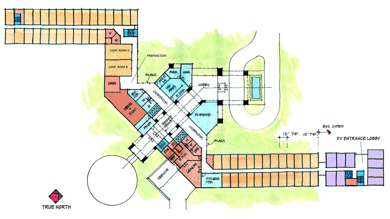
On-base billeting quarters are essential to provide an environment conducive to successful accomplishment of the increasingly complicated and important jobs the active duty and civilian personnel must perform. The 350-room, five-story Visitors Quarters is a modern space that provides living, administration, housekeeping, guest laundry, and lobby areas.

The Visitors Quarters are located next to the Davis Conference Center, also designed by Blair Remy, by realigning Florida Keys Avenue to provide a central campus type setting for visitors. The VQ is designed and oriented to maximize the amount of rooms that allow the guests to enjoy the views of the Bay and Tampa skyline from their rooms. The existing Officer’s Club (Building 397) and additional substandard facilities adjacent to Staff Circle were demolished to help accommodate the new facility.

The design and finishes are selected in accordance with the AMC Architectural Compatibility Plan for MacDill AFB. The project is designed to meet DoD AT/FP requirements, telephone/data/communication systems, utilities, and site improvements with special preparation to meet FEMA requirements.