Select Page

MISSION SUPPORT FACILITY

MSF-MacDill
MSF-Concept-Sub-Area-Plan
MSF-Concept-First-Floor-Plan
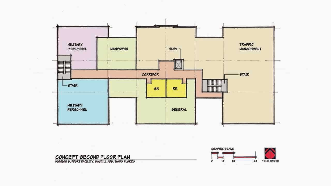
MSF-Concept-Second-Floor-Plan
MSF-Concept-Roof-Plan
MSF-MacDill MSF-Concept-Sub-Area-Plan MSF-Concept-First-Floor-Plan MSF-Concept-Second-Floor-Plan MSF-Concept-Roof-Plan

The architectural team accomplished a design charrette for the user/customer; then, completed a Requirements Documents package.