Select Page

SQUADRON OPERATIONS – ALTUS

ALTUS AIR FORCE BASE
ALTUS, OKLAHOMA
30,000 SF
$6.1 M
DESIGN COMPLETED FY14
CONSTRUCTION COMPLETED FY15

SQUADRON OPERATIONS - ALTUS
SQUADRON OPERATIONS - ALTUS
SQUADRON OPERATIONS - ALTUS
SQUADRON OPERATIONS - ALTUS
SQUADRON OPERATIONS - ALTUS
SQUADRON OPERATIONS - ALTUS
SQUADRON OPERATIONS - ALTUS
SQUADRON OPERATIONS - ALTUS
SQUADRON OPERATIONS - ALTUS
SQUADRON OPERATIONS - ALTUS SQUADRON OPERATIONS - ALTUS SQUADRON OPERATIONS - ALTUS SQUADRON OPERATIONS - ALTUS SQUADRON OPERATIONS - ALTUS SQUADRON OPERATIONS - ALTUS SQUADRON OPERATIONS - ALTUS SQUADRON OPERATIONS - ALTUS SQUADRON OPERATIONS - ALTUS

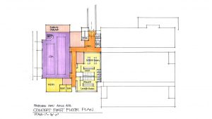
BLAIR REMY ARCHITECTS PERFORMED DESIGN SERVICES FOR THE ADDITION AND RENOVATION OF BUILDING 193 – 16,000 SF TWO-STORY ADDITION FOR THE KC-46A SQUADRON OPERATIONS & AMU (AIRCRAFT MAINTENANCE UNIT) FACILITY AND 14,000 SF 2ND FLOOR SQUAD OPS RENOVATION. AMU: A NEW PRIMARY ENTRANCE AND LOBBY WITH ELEVATOR AND STAIRWELL. THE 1ST FLOOR: CTK (CONSOLIDATED TOOL CRIB) ROOM, MOBILITY STORAGE, LOCKER ROOM/TOILETS, OFFICES, STORAGE, MECHANICAL, ELECTRICAL AND SIPR. THE 2ND FLOOR: CENTRALLY LOCATED LEAD TECH ROOM, BREAK ROOM, FOUR OPEN OFFICES, TWO DEBRIEFING ROOMS, CYPHER LOCKS, CONFERENCE ROOM AND TOILETS. THE SQUAD OPS RENOVATION INCLUDES A COMMANDER’S SUITE WITH PRIVATE OFFICE, OPEN OFFICES AND A SMALL CONFERENCE ROOM. A BOOM POD AND THREE BRIEFING ROOMS, A CENTRAL POD WITH DOO (OPERATIONS DIRECTOR) AREA WITH SARMS (SECURE ARMS) ROOM, TESTING ROOM, ADDITIONAL OFFICES AND TOILETS WERE ALSO INCLUDED.